The proposal for the new Helsinki Architecture and Design Museumembraces a circular and minimal approach, guided by a series of principles:
Re-duce: To reach Helsinki’s climate goals, the designavoids whatever is not fundamentally necessary. Excessive formal expression iseliminated; no basement is proposed; and technical systems are minimized,favoring passive solutions, such as natural ventilation, built-in shading, andthermal buffer zones.
Re-use: Finland’s material consumption is the highest inthe EU, while recovery rates are among the lowest. The project thus reusesmaterials from demolition sites around Helsinki – steel, concrete, and timberelements are salvaged, stored, and reassembled to form the museum’s spaces.
Re-pair: Repair, care, and maintenance are priviledged.Accordingly, the Architecture and Design Museum incorporates a repair workshop invitingcitizens to bring belongings to be fixed – a plea for a repair-based societyand novel aesthetic sensibility, encouraging stewardship rather thanconsumption.
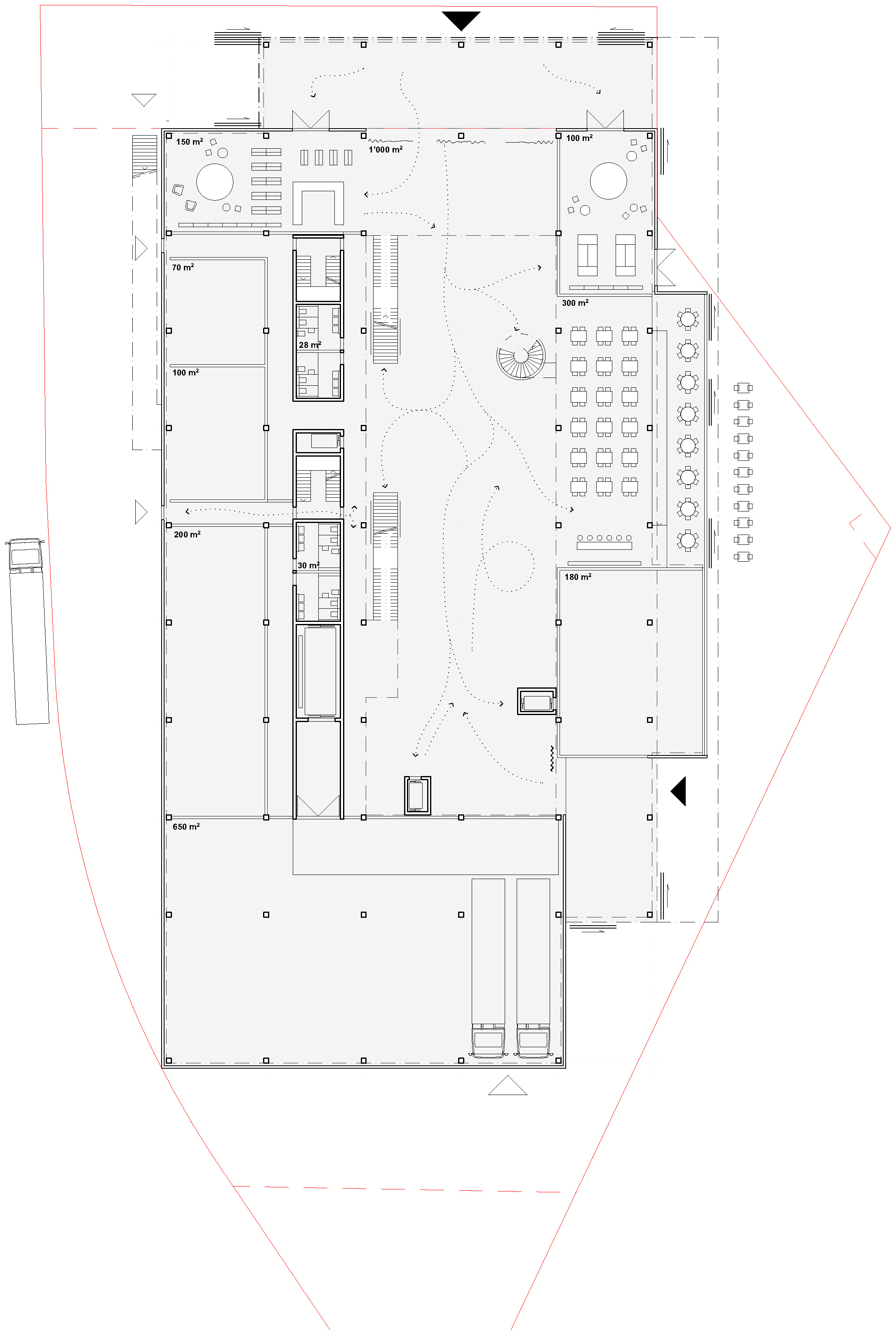
Re-public: Themuseum gives tribute to the public realm, re-publicizing the site, not only viathe transformation of a parking lot into a civic space but by completing theseries of public buildings and spaces along the waterfront. The public realm extendsinto the museum spaces – free-of-charge, insofar as one should not pay forpublic life.
Re-route: Conceivedas a vertical warehouse, the museum can be experienced via multiple routesgoing up, down, and through the building. Visitors can literally loop from onesequence to another. While en route, visitors are offered views of the city,turning the museum into a viewing machine of sorts, foregrounding Helsinki’s setting.
Together, these strategies form a robust, adaptive,and civic-minded museum – a model for how architecture can regenerate material,social, and environmental resources while reimagining the public role of designin the city.










